Mietobjekt in Schildau
Denkmalgeschütztes Natursteinhaus für ökologisch, gartenbaulich oder christlich orientierte Wohngemeinschaften oder als Alterswohnsitz im Grünen
Hallo Mietinteressent!
Du möchtest eine Wohngemeinschaft gründen, die ökologische oder gartenbauliche Interessen verfolgt oder christlich orientiert ist? Oder suchst Du einen Alterswohnsitz im Grünen?
In Schildau vermietet die evangelische Kirchgemeinde das ehemalige Küsterhaus, gebaut 1826 als Mädchenschule, auf dem Kirchberg direkt neben der Stadtkirche. Gegenüber befinden sich Pfarramt und Pfarrerswohnung sowie der ehemalige Pfarrgarten mit ca. 9000 qm, der in den letzten Jahren zum „Garten Erdenreich“ umgestaltet wurde.

Mietobjekt „Küsterhaus“ Schildau – die „technischen Daten“
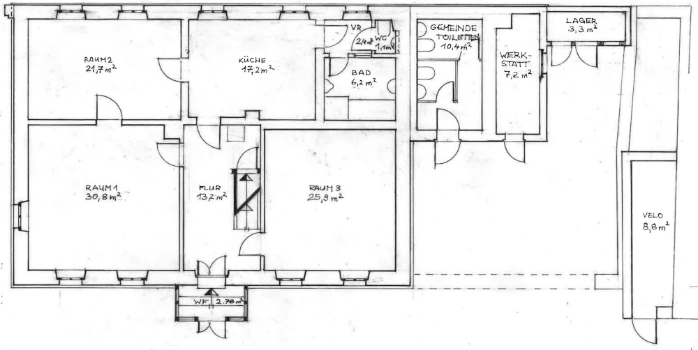
Das Küsterhaus ist eingeschoßig mit ausgebautem Dachboden. Gesamtwohnfläche ca. 175qm. Im Erdgeschoß befinden sich drei Wohnräume (gesamt ca. 78qm), Küche, Bad mit separater Toilette und Flur.
Unter dem Dach gibt es zwei weitere Räume mit ca. 46qm Wohnfläche + Abseiten (Flächen unter der Dachschräge, eine Diele (22qm) sowie eine zusätzliche Toilette. Grundriß – Zeichnungen finden sich am Ende des Beitrags.
Ein Gewölbekeller befindet sich unter dem Flur.
Beheizt wird das Gebäude mit einer Gastherme. In der Küche ist ein Beistellherd vorhanden. Im größten der Räume besteht die Möglichkeit, einen weiteren Ofen anzuschließen.

Das Haus ist ein denkmalgeschützter Natursteinbau, wurde zum Beginn der 90er Jahre grundlegend saniert und wird aktuell für neue Mieter generalüberholt. Abgesehen von Schülern, die von der Grundschule über den Kirchberg zum Hort spazieren, ist die Lage sehr ruhig.
Nebenanlagen zum Miethaus

Zum Mietobjekt „Küsterhaus“ gehören noch ein kleiner Lagerraum (3qm), eine Werkstatt (7qm) und ein Fahrradabstellraum (knapp 8qm) in separaten Nebengebäuden. Gemeindetoiletten in einem der Nebengebäude sind öffentlich, werden aber nur bei größeren Veranstaltungen in der Kirche oder dem Kirchgarten genutzt.
Flächen für einen eigenen Garten sind vorhanden wie auch ein PKW Parkplatz.
Kontakt:
Evang. Kirchspiel Schildau
Kirchberg 02
04889 Schildau
Telefon: 034221-559895
E-Mail: Kirchspiel-Schildau@t-online.de
Garten Erdenreich und Kirchengemeinde Schildau
Vermieter des Küsterhauses ist die evangelische Kirchengemeinde. Diese gehört zum Pfarrbereich Schildau – Audenhain. Mieter mit christlichem Hintergrund und Interesse an einem aktiven Gemeindeleben sind deshalb besonders erwünscht. In Schildau treffen sich Musikfreunde zur wöchentlichen Probe des Kirchenchores und zum Posaunenchor.
Der ehemalige Pfarrgarten ist ein reich strukturiertes Gelände in Südhanglage am Kirchberg. Dieser verwandelte sich seit ca. 2020 in den „Garten Erdenreich“, der eine öffentliche Gartenanlage mit „Schlängelweg“ über die Terrassen, den privaten Gemüsegarten der Pfarrersfamilie, Obstbaum – Pflanzungen, eine ausgedehnte Wildniszone sowie eine Imkerei enthält. Außerdem gehört die frühere Pfarrscheune dazu, in der sich der Schafstall, eine Küche mit Lehmbackofen, eine Werkstatt und die Tenne, wo auch Kulturveranstaltungen stattfinden können, aneinanderreihen. Der „Garten Erdenreich“ freut sich über helfende Hände sowohl für die Gartenarbeit und Gestaltung der Anlage als auch mitdenkende Köpfe für Programmplanung, Veranstaltungsorganisation, eigene Seminarideen und Zukunftsentwürfe. Mieter im Küsterhaus, die sich hier einbringen wollen, werden ebenfalls freudig begrüßt.
Die Kleinstadt Schildau
Schildau ist eine Kleinstadt am westlichen Rand der Dahlener Heide zwischen Leipzig und der Elbe. Seit 2013 gehört sie zum Städteverbund Belgern – Schildau. Wichtige Infrastruktur ist weiterhin vorhanden:
- Eine Außenstelle der Stadtverwaltung mit allen wichtigen Service – Funktionen
- Allgemeinarzt und Zahnärzte
- Grundschule, Hort und Kindergärten
- Einkaufszentren mit zwei Discountern, Backshops, Blumenhändler, Getränkehändler
- Busverkehr mit vorwiegend Schülerverkehr, Rufbus zu allen übrigen Zeiten zwischen 5 und 21 Uhr (v.a. am Wochenende wichtig)
- Post – Filiale
- Volks&Raiffeisenbank – Filiale mit Bankautomat
- Service – Point der Sparkasse Leipzig mit Bankautomat
Schildau ist als die Stadt der Schildbürger und ihrer Streiche bekannt. Ein Schildbürgermuseum und ein Schildbürgerbrunnen sind gut besuchte Attraktionen.
Die Umgebung ist waldreich, dazu zählen der Schildbergwald mit dem Ausflugsziel Schildbergturm sowie die Dahlener Heide mit diversen weiteren Ausflugszielen, die sich wunderbar per Fahrrad, zu Fuß oder zu Pferde erreichen lassen.
Das Seebad Schildau lädt Besucher in den Sommermonaten als Freibad mit Natursee sowie Erlebnisbecken. Eine Pizzeria „La Cabane“ bietet ganzjährig Pizza in angenehmer Atmosphäre sowie als Lieferservice. In der Saison lockt das Eiscafe „Zum Schildberg“ sowie die Snackbar „HaiFive“ am Seebad, letztere außerhalb der Badezeiten auch als Restaurant „Strandhaus“. Weitere Gaststätten gibt es als Ausflugsziele in der Dahlener Heide.
In Schildau gibt es sowohl den klassischen Sportverein v.a. für Fußball – Begeisterte als auch eine Privilegierte Schützengilde, die als Besonderheit auch Reit- und Pferdefahrsport unterstützt. Auf der „Pferdesportarena“ finden mindestens zweimal im Jahr hochkarätige Hindernis – Fahrsport – events bis zu WM – Qualifikationen mit ein- und mehrspännigen Kutschen statt.
Grundriß – Zeichnungen


